REF: 202551943

For Sale

38 Yarm Lane, Stockton-On-Tees, TS18 1ES

Specifications

Offices, retail, Invest and Develop

1604.59 sqft

125000

Description


Located in an exceptionally prominent position on the corner of Prince Regent Street and

Yarm Lane this property comprises  well appointed office accommodation to the ground floor which would be equally suitable for retail use as it has ample display windows. To the first floor, with a separate ground floor vestibule entrance, there is further space presently let on holdover as a Bethel chapel at £400 per month. The property can be offered with that tenant in situ or with full vacant possession.

 

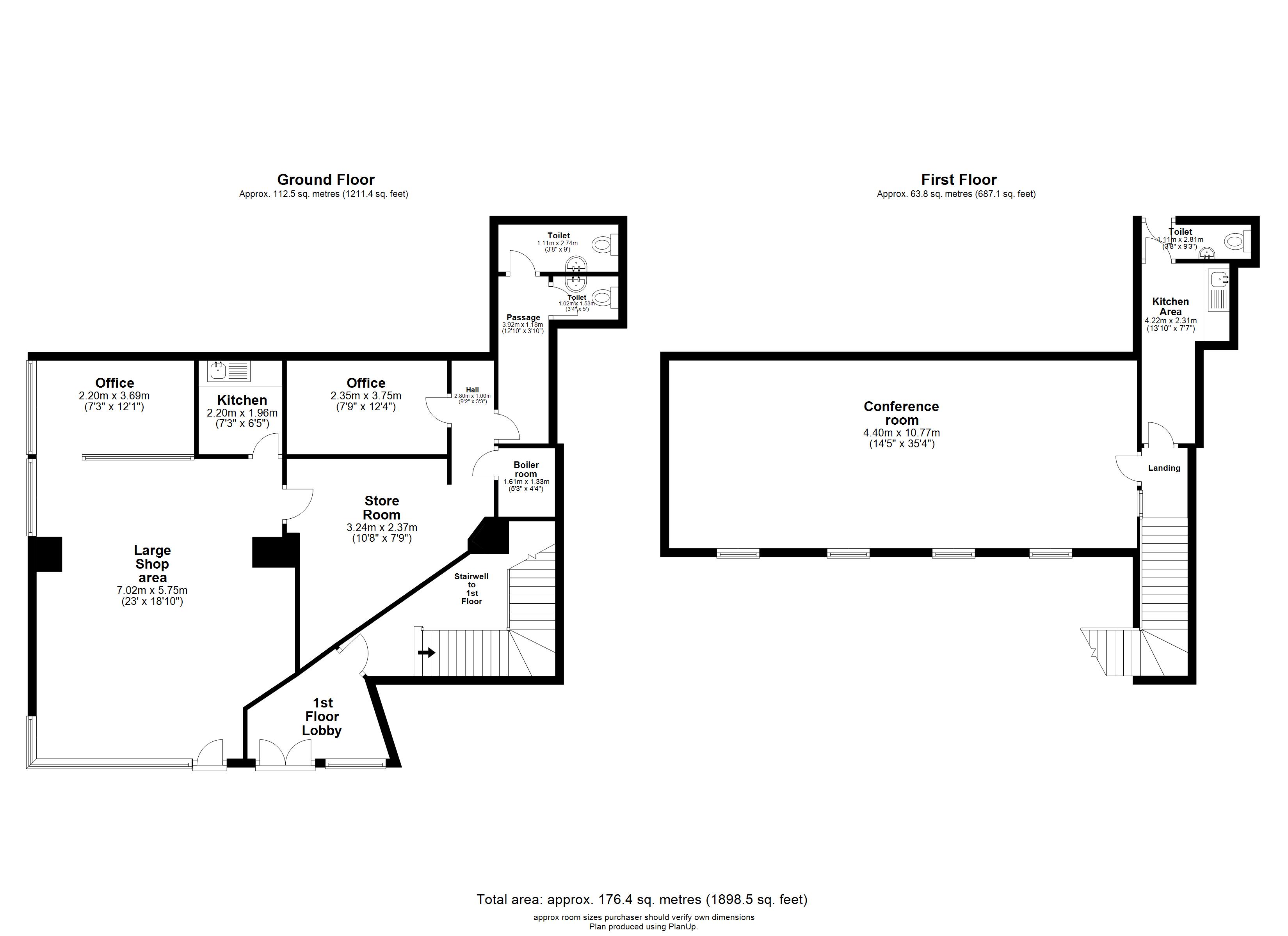
ACCOMODATION COMPRISES

 

GROUND FLOOR

Main office/Reception 481 sq ft

Glass partitioned office 86.21 sq ft

Store Room 166.92 sq ft

Staff Room 92.79 sq ft

Toilets 73.75 sq ft

Kitchen 44.79 sq ft

 

FIRST FLOOR (with separate street level access)

Entrance vestibule 76.59 sq ft

Chapel Meeting Room 493 sq ft

Kitchen and separate WC  89sq ft

 

This is a versatile property which could be equally suitable as offices, retail use, or a service business (beauty/hairdressing etc)

 

The property may qualify for small business rate relief meaning no rates would be payable.

 

PRICE FREEHOLD £125,000